亚洲va综合va国产va中文Iwww操操I国产在线观看91I国产亚洲片I国产丝袜美腿在线I黄色精品在线看I免费观看成人I天天躁天天狠天天透

?
首頁
公司介紹
新聞中心
組織機構
服務理念
售后服務
聯系我們
產品中心
xwzx.png

閥門選型

您的位置: > 新聞中心 > 閥門選型 >
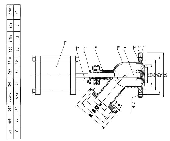
氣動下展式放料閥選型誤區CAD圖紙案例
來源:www.whhpwx.com作者:上海凱利科閥門有限公司更新時間:2023-03-17 09:03:30
今天我們來講解一下有關下展式放料閥在選型上的一個誤區,也就是說選型時經常會遇到溝通不明確,導致驗收不了,特寫如下幾個誤區點。
1、下展式放料閥入口法蘭是與常規法蘭是不同的。
2、下展式放料閥閥板是不會頂出反應釜底的法蘭,與反應釜底的法蘭是可以成平面。
3、下展式放料閥閥座可以取掉,直接用閥板密封。
4、下展式放料閥沒有閥座以后,在反應釜底會形成一個物料堆積點。
例如:
國標法蘭DN250,內孔是250mm,當用戶直接把國標法蘭焊在反應釜底的時候,我們的下料口并不是250mm,我們還需要一個閥座外徑為250mm,內孔為180mm套在反應釜底部法蘭,這時留給閥板的位置只有直徑為180mm,則下料口直徑為180mm。假如由廠家提供反應釜底下的法蘭,廠家提供的DN250法蘭,內孔會開設到285mm,在套上外徑為285mm的閥座上去,內孔留有200mm。
下展式放料閥CAD圖紙案例

上一篇:閥門驅動裝置的特點和選擇 下一篇:沒有了
您是第   位瀏覽者
?

Copyright ?2011-2022 上海凱利科閥門有限公司,版權所有。 滬ICP備11046016號-29 網站地圖

銷售電話:021-31001158

手機號碼:13816746668 陳國輝/經理

電子郵件:klkvalves@126.com@126.com

主營產品:球閥,閘閥,蝶閥,截止閥,止回閥,調節閥

本周熱門:不銹鋼阻火器全天候呼吸閥氣動球閥氣動蝶閥氣動刀閘閥氣動調節閥電動球閥電動蝶閥電動刀閘閥電動調節閥不銹鋼球閥不銹鋼閘閥不銹鋼截止閥不銹鋼止回閥不銹鋼電磁閥高壓電磁閥高壓球閥波紋管截止閥

官方網址:www.whhpwx.com