亚洲va综合va国产va中文Iwww操操I国产在线观看91I国产亚洲片I国产丝袜美腿在线I黄色精品在线看I免费观看成人I天天躁天天狠天天透

?
首頁
公司介紹
新聞中心
組織機構
服務理念
售后服務
聯系我們
產品中心
jtgk.png

產品中心

Q21F外螺紋球閥

您的位置:閥門 - 球閥 - Q21F外螺紋球閥 更新時間:2026-03-31 08:03:56
Q21F外螺紋球閥
    • 質量安全:壓力、材質、密封等全方位檢測確保質量過關!
    • 價格比較:在相同品質的情況下,廠里直銷,更具有優勢!
    • 交貨快捷:常規產品現貨供應,生產加工銷售一條龍服務!
      上海凱利科閥門致力于高品質閥門的設計、研發、生產銷售服務于一體的大型閥門企業,科技創新,永不止步,與您攜手共創輝煌...

    • 產品描述
    • 在線詢價
    • 技術咨詢
    Q21F外螺紋球閥Q21F外螺紋球閥

    Q21F外螺紋球閥適用于PN1.0~6.4MPa,工作溫度-29~180℃(密封圈為增強聚四氟乙烯)或-29~300℃(密封圈為對位聚苯)的各種管路上,用于截斷或接通管路中的介質。選用不同的材質可分別適用于水、蒸汽、油品、硝酸、醋酸等多種介質。

    產品名稱: 外螺紋球閥 產品型號: Q21F
    公稱通徑: DN6~DN50 結構形式: 球形
    公稱壓力: 1.6Mpa~6.4Mpa(W.O.G) 連接方式: 外螺紋
    適用溫度: -20~232℃~350℃ 驅動方式: 手動、電動、氣動
    閥體材質: 鑄鋼、不銹鋼 制造標準: 國標GB、德國DIN、美國API、ANSI
    適用介質: 水、油、氣及某些腐蝕性液體 生產廠家: 上海凱利科閥門有限公司

    產品說明

    Q21F外螺紋球閥適用于PN1.0~6.4MPa,工作溫度-29~180℃(密封圈為增強聚四氟乙烯)或-29~300℃(密封圈為對位聚苯)的各種管路上,用于截斷或接通管路中的介質。選用不同的材質,可分別適用于水、蒸汽、油品、硝酸、醋酸等多種介質。

    產品特點

    Q21F外螺紋球閥分為整體式(一片式)、兩段式及三段式。閥體鑄造采用臺灣引進的先進工藝,結構合理、造型美觀。閥座采用彈性密封結構,密封可靠,啟閉輕松。 閥桿采用有倒密封的下裝式結構,閥腔異常升壓時,閥桿不會被沖出。二片式、三片式球閥連接形式另有對焊(BW)承插焊(SW),并均可帶國際標準ISO支架平臺和鎖定裝置。可設置90°開關定位機構,根據需要加鎖以防止誤操作,驅動方式:手動、電動、氣動。

    產品特征

    公稱壓力 適用介質 適用穩定范圍 螺紋類型
    1.6-6.4MPa 水、油、氣及某些腐蝕性液體(W。O。G) -20~232℃~350℃ G。NPT。BSPT。BSP。DI259/2999

    主要技術參數

    公稱通徑 DN(mm) 6~100mm
    公稱壓力 PN(MPa) 2.5 4.0 6.4
    試驗壓力 強度試驗壓力 3.8 6.0 9.6
    高密封試驗壓力 3.0 4.8 7.6
    低壓氣密封試驗壓力 0.6 0.6 0.6
    適用介質 水、蒸汽、油品、酸類腐蝕性等。
    適用溫度 < 150℃(PTFE) < 300℃(PLL)

    主要零件材料

    零件名稱 閥體 球體、閥桿 手柄 密封圈 墊片、填料
    Q21F-16C、Q21F-25C、Q21F-40C、Q21F-64C A105、45 1Cr18/1Cr18Ni9Ti 不銹鋼SS304 聚四氟乙烯PTFE
    對位聚笨PPL
    聚四氟乙烯PTFE
    對位聚笨PPL
    Q21F-16P、Q21F-25P、Q21F-40P、Q21F-64P 1Cr18Ni9Ti SS304/1Cr18Ni9Ti
    Q21F-16R、Q21F-25R、Q21F-40R、Q21F-64R SS316/Cr18Ni12Mo2Ti SS316/Cr18Ni12Mo2Ti

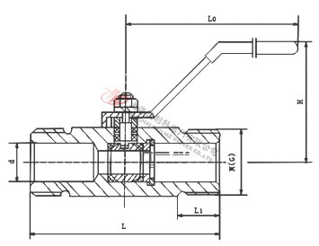
    外形結構圖

     

    主要尺寸表

    公稱直徑 尺寸(mm)
    d L L1 M Lo Q61對焊接頭總長
    6 8 85 15 20×1.5 110 166
    10 10 85 16 24×1.5 110 166
    15 10 85 18 30×2 110 172
    20 13 90 18 36×2 110 187
    25 17 100 20 42×2 110 227
    32 22 120 20 52×2 150 235
    40 25 135 25 60×3 150 255
    50 32 140 25 72×3 150 291
    螺紋標準:GB196
     

    聲明:【Q21F外螺紋球閥】規格型號、結構尺寸由上海凱利科閥門有限公司提供,如何選擇適用的Q21F外螺紋球閥產品,使之在工藝控制中安全可靠、經濟適用,可致電我司銷售部門及技術部門,我們將在最短的時間內為您解答!

    上一篇:Q11F內螺紋球閥 下一篇:Q41F法蘭球閥

    ?

    Copyright ?2011-2023 上海凱利科閥門有限公司,版權所有。 滬ICP備11046016號-29 網站地圖

    銷售電話:021-31001158

    手機號碼:13816746668 陳國輝/經理

    電子郵件:klkvalves@126.com@126.com

    主營產品:球閥,閘閥,蝶閥,截止閥,止回閥,調節閥

    本周熱門:不銹鋼阻火器全天候呼吸閥氣動球閥氣動蝶閥氣動刀閘閥氣動調節閥電動球閥電動蝶閥電動刀閘閥電動調節閥不銹鋼球閥不銹鋼閘閥不銹鋼截止閥不銹鋼止回閥不銹鋼電磁閥高壓電磁閥高壓球閥波紋管截止閥

    官方網址:www.whhpwx.com