亚洲va综合va国产va中文Iwww操操I国产在线观看91I国产亚洲片I国产丝袜美腿在线I黄色精品在线看I免费观看成人I天天躁天天狠天天透

?
首頁
公司介紹
新聞中心
組織機構
服務理念
售后服務
聯系我們
產品中心
jtgk.png

產品中心

Q41F46襯氟球閥

您的位置:閥門 - 球閥 - Q41F46襯氟球閥 更新時間:2026-01-12 02:01:02
Q41F46襯氟球閥
    • 質量安全:壓力、材質、密封等全方位檢測確保質量過關!
    • 價格比較:在相同品質的情況下,廠里直銷,更具有優勢!
    • 交貨快捷:常規產品現貨供應,生產加工銷售一條龍服務!
      上海凱利科閥門致力于高品質閥門的設計、研發、生產銷售服務于一體的大型閥門企業,科技創新,永不止步,與您攜手共創輝煌...

    • 產品描述
    • 在線詢價
    • 技術咨詢
    Q41F46襯氟球閥Q41F46襯氟球閥

    Q41F46襯氟球閥可分為對分二片式和三片式兩種結構型式,除具有的流體阻力小,啟閉速度快,結構簡單外,采用FEP襯里層的球閥具有極高的化學穩定性可以適用除“熔融堿金屬和元素氟”,以外其它任何強腐蝕性質。

    產品名稱: 襯氟球閥 產品型號: Q41F46
    公稱通徑: DN15~DN300 結構形式: 球形
    公稱壓力: 1.6Mpa~6.4Mpa 連接方式: 法蘭、內螺紋
    適用溫度: ≤450ºC 驅動方式: 手動、氣動、電動
    閥體材質: 鑄鋼、不銹鋼 制造標準: 國標GB、德國DIN、美國API、ANSI
    適用介質: 水、油、氣體、導熱油、液體 生產廠家: 上海凱利科閥門有限公司

    Q41F46襯氟球閥產品說明

    Q41F46襯氟球閥可分為對分二片式和三片式兩種結構型式,除具有的流體阻力小,啟閉速度快,結構簡單外,采用FEP襯里層的球閥,具有極高的化學穩定性,可以適用除“熔融堿金屬和元素氟”,以外其它任何強腐蝕性質。采用全通徑、浮動球結構,閥門可在整個壓力范圍內進行無泄漏關閉,更便于管路系統的通球掃線和管路維護。啟閉件球件與閥桿鑄(鍛)為一體,杜絕了由于壓力變化引起閥桿沖出承壓件內的可能性,從根本上保證了工程中的使用安全性。結構緊湊合理,閥體內腔空間最小,減小了介質滯留,另外,特殊的模壓工藝,使密封面致密度良好,加之人字環形PTFE填料組合,使閥門達到零泄漏。

    基本型號 

    手動 Q41F3 蝸輪 Q341F3
    Q41F46 Q341F46
    氣動 Q641F3 電動 Q941F3
    Q641F46 Q941F46

    技術規范

    設計標準 GB12237
    結構長度 GB12221
    法蘭標準 JB/T79-94
    GB9113.1-26
    檢驗試驗 JB/T9092-99
    驅動方式 手動、電動、氣動、蝸輪

    主要零部件材料表

    序號 零件名稱 灰鑄鐵 鑄鋼 不銹耐酸鑄鋼 超低碳不銹耐酸鑄鋼
    Z C P8 R8 R3 R3
    1 閥體/閥蓋 A216-C A216-WCB A351-CF8 A351-CF8M A351-CF3 A351-CF3M
    2 球體/閥桿 A216-WCB A351-CF8 A351-CF8M A351-CF3 A351-CF3M
    3 襯里/閥座 PTFE(F4)、PCTFE(F3)、FEP(F46)、PFA(可溶F4)
    4 填料/壓蓋 PTFE(F4) A351-CF3 A351-CF3
    5 填料 A216-WCB A351-CF8 A351-CF8
    6 支架 A193-B7 A194-8 A193-B8M
    7 緊固螺栓 A193-B7 A193-B8M A194-8
    8 螺母 A194-2H A194-8 A194-8
    9 操作手柄 A216-WCB A216-WCB A216-WCB

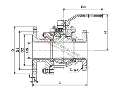
    外形結構圖

     

    1.0MPa主要外形和連接尺寸

    公稱通經 L D D1 D2 f b Z-φd
    DN(mm) NPS(inch) PN1.0MPa
    15 1/2 130 95 65 45 2 14 4-φ14
    20 3/4 140 105 75 55 2 16 4-φ14
    25 1 150 115 85 65 2 16 4-φ14
    32 5/4 165 135 100 78 2 18 4-φ18
    40 3/2 180 145 110 85 3 18 4-φ18
    50 2 200 160 125 100 3 20 4-φ18
    65 5/2 220 180 145 120 3 20 4-φ18
    80 3 250 195 160 135 3 22 4-φ18
    100 4 280 215 180 155 3 22 8-φ18
    125 5 320 245 210 185 3 24 8-φ18
    150 6 360 280 240 210 3 24 8-φ23
    200 8 457 335 295 265 3 26 8-φ23
    250 10 533 390 350 320 3 28 12-φ23

    1.6MPa主要外形和連接尺寸

    公稱通經 L D D1 D2 f b Z-φd
    DN(mm) NPS(inch) PN1.0MPa
    15 1/2 130 95 65 45 2 14 4-φ14
    20 3/4 130 105 75 55 2 16 4-φ14
    25 1 140 115 85 65 2 16 4-φ14
    32 5/4 165 135 100 78 2 18 4-φ18
    40 3/2 165 145 110 85 3 18 4-φ18
    50 2 203 160 125 100 3 20 4-φ18
    65 5/2 222 180 145 120 3 20 4-φ18
    80 3 241 195 160 135 3 22 8-φ18
    100 4 305 215 180 155 3 24 8-φ18
    125 5 356 245 210 185 3 26 8-φ18
    150 6 394 280 240 210 3 28 8-φ23
    200 8 457 335 295 265 3 30 12-φ23
     

    聲明:【Q41F46襯氟球閥】規格型號、結構尺寸由上海凱利科閥門有限公司提供,如何選擇適用的Q41F46襯氟球閥產品,使之在工藝控制中安全可靠、經濟適用,可致電我司銷售部門及技術部門,我們將在最短的時間內為您解答!

    ?

    Copyright ?2011-2023 上海凱利科閥門有限公司,版權所有。 滬ICP備11046016號-29 網站地圖

    銷售電話:021-31001158

    手機號碼:13816746668 陳國輝/經理

    電子郵件:klkvalves@126.com@126.com

    主營產品:球閥,閘閥,蝶閥,截止閥,止回閥,調節閥

    本周熱門:不銹鋼阻火器全天候呼吸閥氣動球閥氣動蝶閥氣動刀閘閥氣動調節閥電動球閥電動蝶閥電動刀閘閥電動調節閥不銹鋼球閥不銹鋼閘閥不銹鋼截止閥不銹鋼止回閥不銹鋼電磁閥高壓電磁閥高壓球閥波紋管截止閥

    官方網址:www.whhpwx.com